Click here for Greater Long Island newsletters. Click here to download the iPhone app. Or follow Greater Smithtown on Instagram.
From Town Hall, Smithtown Supervisor Edward Wehrheim said he can see the progress being made at the site of the old Nassau Suffolk Lumber & Supply Corp in the heart of the hamlet.
“It’s been a vacant piece of property for quite some time,” Wehrheim said. “We’re excited that it’s finally under construction. And we think it’s gonna be something that will benefit all of the businesses here in Smithtown on Main Street.”
The project being constructed is a stone’s throw away from the town offices.
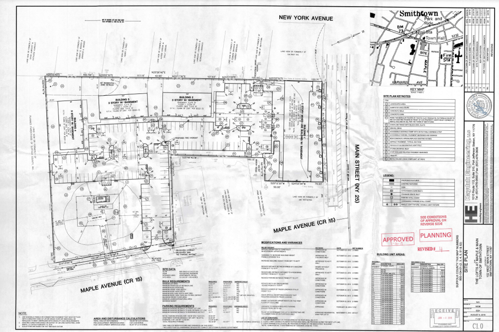
It’s VEA 181 Reality Corp’s Lofts at Maple and Main, a mixed-use development the the business district.
Comprising 71 market-rate rental units, available in one- and two-bedroom models, the Lofts at Maple and Main is a four-building development.
Three structures will be dedicated solely for apartments, but the fourth, Wehrheim said, will be a mixed-use building that will add 9,500 square feet of retail space along Main Street, between Maple and New York avenues
Build it and they will come
The site is under construction while Long Island’s housing market is experiencing a boom and residential developments are cropping up county-wide.
For Smithtown, according to Wehrheim, the project is indicative of future endeavors that will bring in a steady supply of consumers to the town’s business districts.
“What we have found out, not just here in Smithtown, but every town, is the health of the business district nowadays depends on putting people, living space for people, in these business districts,” he said.
Wehrheim noted that residents located within walking distance or in downtown areas are known to keep local restaurants, pubs and theaters afloat. He points to the nearby condominiums as evidence that housing in proximity to Smithtown’s Main Street is essential.
The supervisor said residents of those condos frequent Main Street by foot.
“If you put people in the business district, they will frequent the business district,” he said. “It’s something necessary to keep business districts alive.”
The Lofts at Maple and Main was approved by the county with an on-site sewage treatment plant.
Wehrheim said future residential projects in the business districts will be hooked up to incoming sewer mains.
“The future for development in the business district, where we would have apartments for rent, is dependent on [sewers],” he said “Once we get these sewers installed in the business district, which we are working on as we speak, King’s Park will be first and we hope to follow up with Smithtown, then I’m sure you will see developers come in with projects like this in the business district.”
County controversy
VEA 181 Realty Corp., an East-Hampton-based company, purchased the property in 2008, and controversy followed soon after. The company violated a stop work order and began demolition in 2009. Two years later, the incident became the focus of a Suffolk County Grand Jury investigation, which alleged a town official recommended the company demolish the building to save taxes.
The suit failed to result in any charges, and board members voted the previously demolished structure be eliminated along with adjacent buildings.
The site plan for the Lofts at Maple and Main was approved Aug 2018.
Greater Long Island made several phone calls to the developer, but VEA failed to respond to our requests for comment.
It is unknown when construction on the mixed-use project will be complete, but Wehrheim said he sees crews at the site every day.
“We haven’t had any indication from the developer when he’s gonna finish,” Wehrheim said. “I would hope it would be a year or so, maybe a tad less.”





















